Bend Oregon Homes For Sale
Search Homes For Sale in Bend, OR By Map
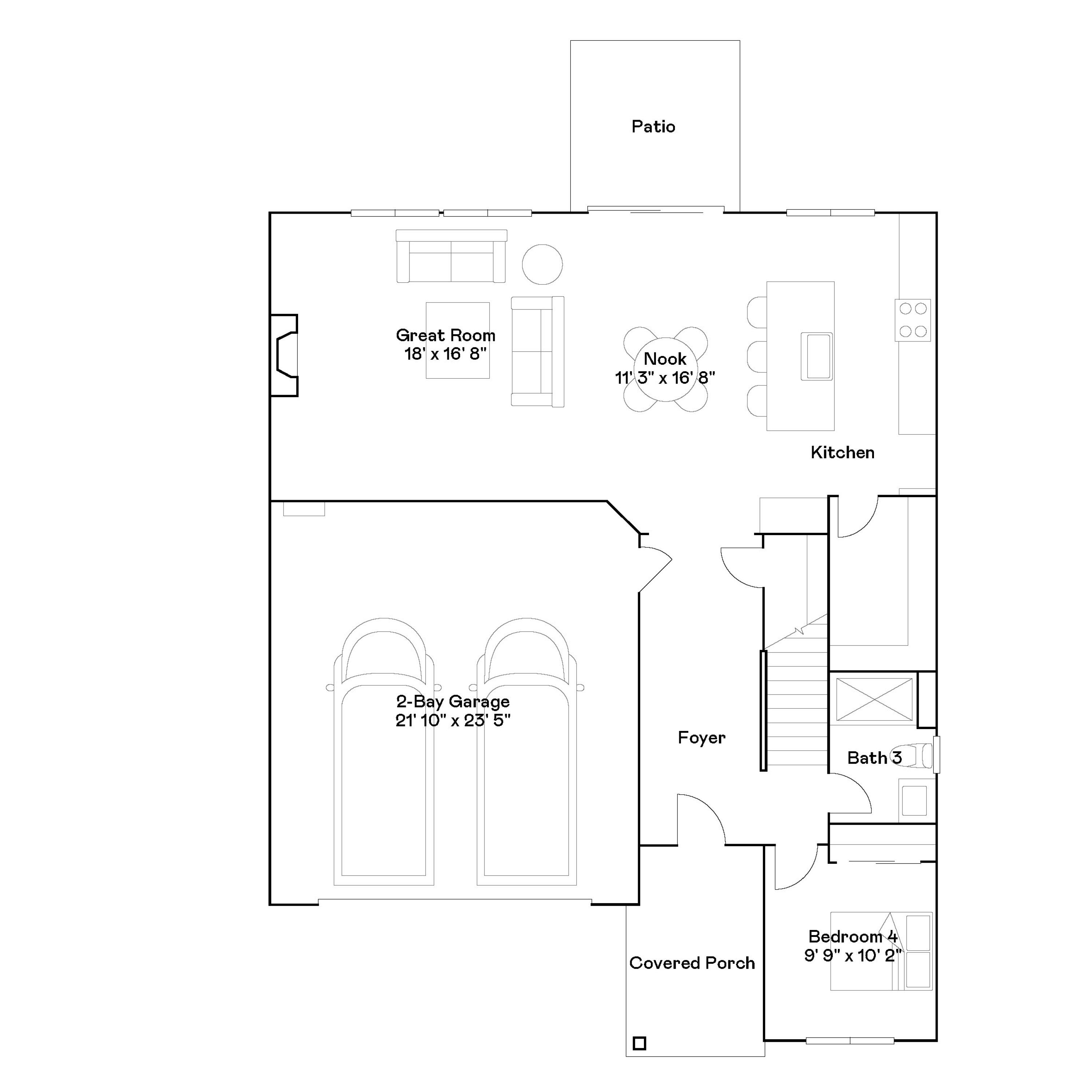
63221 Carly LnBend, OR 97701
Due to the health concerns created by Coronavirus we are offering personal 1-1 online video walkthough tours where possible.




This new construction Larwood floorplan features a generous open floorplan that serves as the focal point of this two-story home. It's located in Acadia Pointe, a new community in NE Bend with easy access to shopping, dining, and local parks. Inside, the great room, kitchen, and dining room flow together and open to a patio through sliding glass doors. Near the entry is a secondary bedroom ideal for overnight guests or household members who need more privacy. Three more bedrooms surround a loft upstairs. The Everything's Included® package adds AC, a refrigerator, blinds, and a washer and dryer, at no extra cost. Photos are of similar or model home so features and finishes will vary. Taxes not yet assessed. Located on Homesite 93!
| 2 weeks ago | Listing first seen on site | |
| 2 weeks ago | Listing updated with changes from the MLS® |
© 2026 Oregon Datashare (KCAR | MLSCO | SOMLS). All rights reserved. The data relating to real estate for sale on this web site comes in part from the Internet Data Exchange Program of the Oregon Datashare. Real estate listings held by IDX Brokerage firms other than Lennar Sales Corp are marked with the Internet Data Exchange logo or the Internet Data Exchange thumbnail logo and detailed information about them includes the name of the listing Brokers. Information provided is for consumers' personal, non-commercial use and may not be used for any purpose other than to identify prospective properties the viewer may be interested in purchasing. The consumer will not copy, retransmit nor redistribute any of the content from this website. Information provided is deemed reliable, but not guaranteed. Data Services by Constellation Data Labs.
This content last updated on 2026-02-08 03:54 PM PST. Some properties which appear for sale on this website may subsequently have sold or may no longer be available. Source: Oregon Datashare.
Did you know? You can invite friends and family to your search. They can join your search, rate and discuss listings with you.