Bend Oregon Homes For Sale
Search Homes For Sale in Bend, OR By Map
21499 OConnor WayBend, OR 97701
Due to the health concerns created by Coronavirus we are offering personal 1-1 online video walkthough tours where possible.




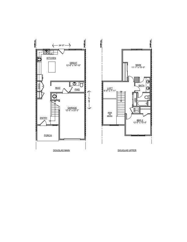
LOT 12: This is a prototype home, and subect to change. The 1362 sq ft Douglas offers a smart, flexible layout ideal for a variety of lifestyles. The grand two-story entry sets the tone for a bright and airy main living area featuring a generous kitchen island and welcoming great room. Upstairs, you'll find two bedrooms and a loft - perfect for an office, hobby space, or cozy retreat. The spacious bathroom includes double vanities, a private wet room, and exclusive access from the main bedroom, blending comfort and privacy seamlessly. The Douglas is the perfect match for those seeking efficient design with a touch of elegance. An extra-wide single-car garage provides additional storage or workspace.
| 10 hours ago | Listing first seen on site | |
| 10 hours ago | Listing updated with changes from the MLS® |
© 2026 Oregon Datashare (KCAR | MLSCO | SOMLS). All rights reserved. The data relating to real estate for sale on this web site comes in part from the Internet Data Exchange Program of the Oregon Datashare. Real estate listings held by IDX Brokerage firms other than New Home Star Oregon, LLC are marked with the Internet Data Exchange logo or the Internet Data Exchange thumbnail logo and detailed information about them includes the name of the listing Brokers. Information provided is for consumers' personal, non-commercial use and may not be used for any purpose other than to identify prospective properties the viewer may be interested in purchasing. The consumer will not copy, retransmit nor redistribute any of the content from this website. Information provided is deemed reliable, but not guaranteed. Data Services by Constellation Data Labs.
This content last updated on 2026-04-25 05:34 AM PDT. Some properties which appear for sale on this website may subsequently have sold or may no longer be available. Source: Oregon Datashare.
Did you know? You can invite friends and family to your search. They can join your search, rate and discuss listings with you.